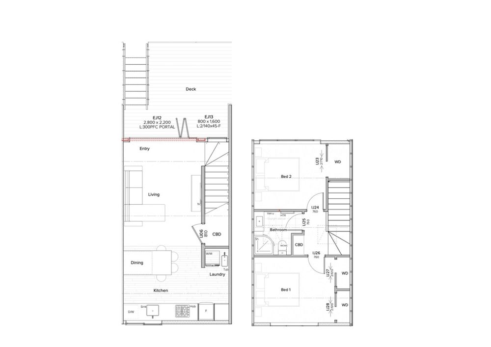
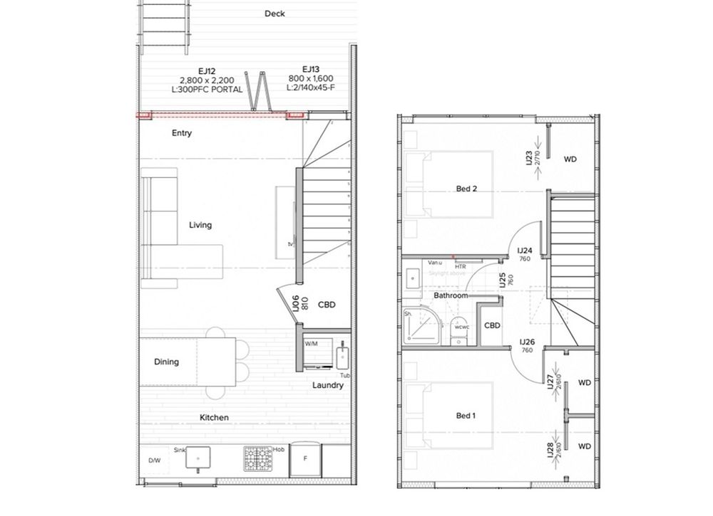
8 Bushlands Grove, Paparangi

Perfectly positioned in the heart of Paparangi, this boutique development of 10 architecturally designed freehold townhouses offers the perfect blend of style, comfort, and modern convenience.

Information

Nestled in a quiet, sunny location over looking Seton Nossiter reserve and just minutes from local schools, parks, shops, and public transport, these homes are now available to purchase off the plans.

Type

Residential | Wellington

Timeline

Under Construction